エステートあすなろ特選、マンション「豊成107番館」の賃貸物件情報です。どのようなことでもお気軽にお問い合せください。
- 所在地
- 岡山市北区問屋町26-105
- 賃料
- 660,000円
- 共益費
- 賃料に含む
- 駐車場
- 6台分賃料に含む
- 敷金
- 敷金3ヶ月.礼金1ヶ月
- 建物名
- タニモト店舗・事務所
- 構造
- RC(鉄筋コンクリート)造
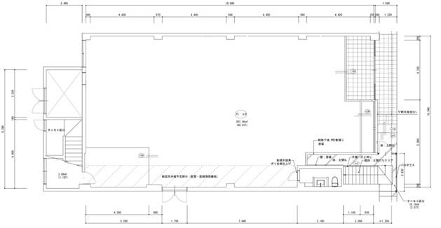
- 間取り
- 図面参照
- 間取り内訳
- -
- 築年数
- 昭和43年6月
- 入居予定日
- 相談
- タイプ
- その他
- 部屋番号
- 1F
- 専有面積
- 205.25㎡
- 設備
- 駐車場
- あり
- 貸出戸数
- 1戸
- 条件等/契約期間
- 5年間
- 特記事項
- ※内装・設備については借主にて負担
※貸主面談有
※定期借家 契約期間5年(再契約型)
- 物件写真

- 間取り

- 地図
-
この物件についてお問い合せ
☎ お電話でお問い合せ

※住宅ローンのシミュレーションを自動で計算します。借入額、返済年数、金利(0.001~18%)、ボーナス返済総額を入力して「計算する」をクリックしてください。